|
|
|
 |
 |
PROJEKTID
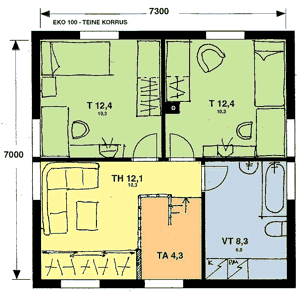
EKO 100
EKO 100 on projekteeritud kompaktsemana kui 144-sari. Esimese
korruse planeering võimaldab elamist alustada teist korrust
esialgu välja ehitamata. Vahelaele paigaldatud soojustust kasutatakse
teise korruse väljaehitamisel seinte ja katuse soojustamiseks.
Maja on mõeldud noortele elu alustamiseks, aga ka eakatele,
kes, elades väljaehitatud esimesel korrusel, jätavad lastele
päranduseks võimaluse teisel korrusel eluruumi laiendada.
Maja sobib inimestele, kes soovivad elada ökonoomselt.
Majas on esimesel korrusel peale esiku ja väliriiete garderoobi
elutuba köögiga, WC pesemisvõimalusega ja garderoobiga
magamistuba. Viimase asemele võib vajadusel ehitada sauna ning
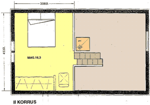
pesuruumi. Teisel korrusel on kaks magamistuba, vannituba ja trepihall,
mille võib välja ehitada ka töötoa või
abiruumina.
EKO 100 projektist
Paljudele pole jõukohane ka keskmiselt kaheksasaja tuhande
krooniga oma maja ehitamine (EKO 144). Tänane maa ja kommunikatsioonide
liialt kõrge hind viib koguprojekti maksumuse liialt ülejõukäivaks
paljudele noortele, kes pangalaenuga püüavad hakkama saada.
Mitmed tellijad on siseviimistlusega ise kätt proovinud.
Pangalaenu tagasimaksmiseks tuleb põhitööl kõvasti
vaeva näha. Riskantne on ehitada laenuga majakarp ning lisaks
laenumaksmisele tegelda ise maja siseviimistluse lõpetamisega.
Seepärast peaks laenusumma võimaldama ehitada maksimaalselt
elamiskõlbliku maja lõpuni valmis.
Aastal 2001 projekteerisin eramu EKO 100- (mis on minu arvates
kui A klassi "MERSU "- väljast väike , seest mahukas).
Maja projekteerisin loogilise jätkuna eelnevatele majadele. Maja
on pisut kompaksem ja armsam. Püüdsin säilitada samad
funktsioonid mis EKO 144-l, muutes vaid teatud ruumid väiksemaks.
Kohendasin ja lihtsustasin kasutatavat ehitustehnoloogiat.
 |
 |
| Esimene korrus valmis ehitatuna |
Esimene korrus |
 |
 |
| Teine korrus |
Lõige |
Mõned EKO 100 populaarsemad variandid. Kliki projektil, et
seda suuremalt uurida.
Kliki projektil, et seda suuremalt uurida.
EKO 144
Optimaalse, praktilise, ratsionaalse ja ruumika 144m2 eramu projekteerisin
esimesena. Seni on kõige rohkem ehitatud just neid maju. Samuti
on 144m2 majja mahtunud kahele perele mõeldud eramu.
Hiljem lisandus samasse klassi kuuluv 136- ja 120 m2 suurune EKO 136 ja EKO 120, mis on
EKO 100 pikendatud variant.
Lihtsa vormiga ja sümpaatselt viimistletud puitvoodriga majad
sobivad nii linna kui ka maale. Pakkuda on kümneid erineva põhiplaani
lahendusega näidisprojekte, vastavalt teie vajadustele.
Samuti erinevaid lisasid mida võib majaga liita: auto varjualused,
garaazid ühele ja kahele autole, terrassid jne.
Maja on inimestele kes peavad lugu ratsionaalsusest, ökonoomsusest,
kaasaegsusest, praktilisusest ning rahuldab nõudlikuma pere
ruumivajadusi.
 |
 |
| Esimene korrus |
Teine korrus |
Mõned EKO 144 populaarsemad variandid. Kliki projektil, et
seda suuremalt uurida.
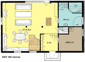
EKO 180
Esinduslik EKO
180 sobib avarust ja stiilsust hindavale suurele perele. Maja
mahutab vajadusel, lisaks saunale, kuus kuni seite tuba. Samuti
leidub võimalus projekteerida EKO 180 kahepereeramuks.
|
 |
| Esimene korrus |
 |
| Teine korrus |
Mõned EKO 180 populaarsemad variandid. Kliki projektil, et
seda suuremalt uurida.
EKO 52
Saunamaja sobib lisahooneks suuremale elumajale. Esik ja köök
on ühendatud eluruumiga, köögi kaudu pääseb
pesu- ja leiliruumi. Poole maja ulatusest moodustub katusekorrus magamisruumiga.
Majake sobib noortele elu alustamiseks. Näide: Ostke odav suvilakrunt,
Ehitage eko 52, paigutdes ta krundile tulevikus suure maja ehitamise
võimalusega.
 |
 |
| Esimene korrus |
Teine korrus |
 |
|
| Lõige |
|
Kokku on 2015 aasta jaanuariks projekteeritud ja ehitatud kakssada nelikümmend
eramut
Eestis ja mõningad ka Lätis.
Copyright Üllar Karro
OÜ Karro Projekt
|
 |
 |
 |
|